
首创悦榕汇自住型商品住房套型主要为约46-77平方米一居22套、约76-89平方米两居642套、约87平方米三居48套,总套数约712套。销售均价22500元/平方米(根据具体楼层、朝向在±5%范围内调整销售价格)。项目居住用地整体容积率约3.2,绿地率约25%,建筑密度约30%。自住型商品住房共3个楼栋,分别为3号楼、4号楼、5号楼。
3号楼共3个单元,建筑层数为地下2层,地上为21层,层高为2.8米。其中1单元、2单元为自住型商品住房,3单元为配建公租房;4号楼共2个单元,建筑层数为地下3层,地上为28层,层高为2.8米。全部为自住型商品住房;5号楼共2个单元,建筑层数为地下3层,地上为28层,层高为2.8米。全部为自住型商品住房。梯户比:3号楼一单元为两梯四户、二单元为两梯六户。4号楼一单元为两梯四户、二单元为两梯六户。5号楼一、二单元均为两梯四户。
首创悦榕汇共53种户型,其中一居户型4种,三居户型3种,其余全部为两居户型。按照价格和舒适度等标准小编对53种户型做了简单的排序,仅供选房参考。
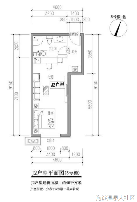
一、总价最低,位于5号楼的J2及J2反户型,为46平米一居,分别有一套房源。
户型点评:户型为南向,采光较好,整体户型比较方正,空间利用合理;但是卫生间为暗卫,不利于散味除湿;同时,需要注意的是厨房无燃气。
二、总价次低,位于3号楼的C及C’户型,为77平米一居,其中C户型6户,C’户型14户。
户型点评:C及C’户型整体户型狭长,动线较长;优点是明厨明卫,利于散味除湿。两户型的主要差别在于C户型起居室窗户为北向,采光较差;C’户型起居室在西侧、北侧分别有一个窗户,采光相对C户型较好。
三、性价比最高的为87平米3居户型,共3种,分别为3号楼E户型约20户;4号楼E2户型约27户;4号楼E2-s户型约1户。
户型点评:三个户型整体来说较相似,动线较长,次卧去卫生角需要穿越客厅。相对来说,E2户型较好,卫生间为明卫,利于散味除湿。
四、2居户型面积为76-89平,种类较多,小编个人认为3号楼D户型,相对较好。
户型点评:户型为纯南向,采光较好,户型较方正,空间利用率相对较高;厨房有窗,利于散味;不足之处在于卫生间为暗卫,不利于散味除湿。
来源:网易房产
未经允许不得转载:海淀北部便民平台 » 永丰首创悦榕汇户型全解析!首创悦榕汇自住型商品住房
海淀北部便民平台

