
提要:昨日区文化委公布了《海淀区文化委2014年工作总结和2015年工作安排》,备受海淀北部居民期待的海淀北部文化中心投入使用时间终于有了时间表,工作安排中明确“北部文化中心将于年底开馆,将探索适当增加编制与购买文化服务相结合的人员管理制度”。
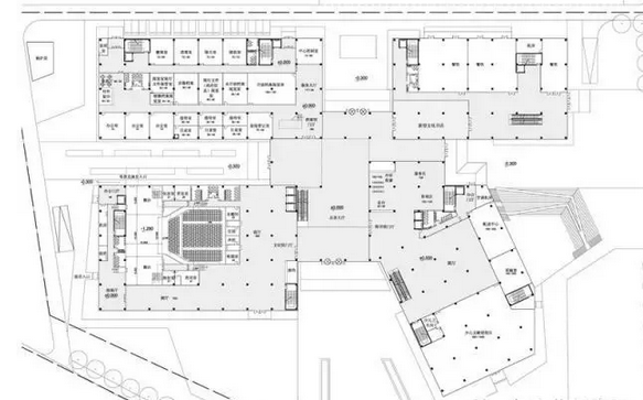
(海淀北部文化中心内部布局)
同时指出将依托首都图书馆、市文化局公共文化专家,研究北部文化中心的人员配置和南北中三馆的功能定位,加强对北部新馆人员的培训。
其实早在去年,区文化委就在推进北部文化中心项目做了大量工作,在推进论证外观设计的基础上,组成专家组,召开十余次研讨会,推进北部文化中心图书馆、文化馆内部功能建设的不断优化。为使分散的四个功能馆凝聚为主题馆,筹建北部中心开辟2700平米筹备海淀通史陈列展。
在2015年工作安排的最后特别提出:“经过任务分解,2015年区文委承担市区各级领导及部门的重点工作近40项,特别是北部文化中心提升开馆运营时间紧、任务重,需要同志们付出更多的心血、智慧和努力。”
目前,北部文化中心已进入到最后的精装修和机电设施调试阶段,海淀北部没有大型文化设施的历史即将改写,另外从全区角度值得关注的是,根据区委区政府第一批事业单位改革的统一部署,文委所属事业单位海淀剧院、海淀电影管理处转企改制,海淀区评剧团撤销建制并入海淀文化馆。目前海淀评剧团国有资产出租部分全部收回,将建设海淀南部文化中心。未来海淀区将有望形成南北文化中心相呼应的格局。
未经允许不得转载:海淀北部便民平台 » 海淀北部文化中心开馆明确时间表 将筹建2700平米海淀通史陈列展
 海淀北部便民平台
海淀北部便民平台


 京西稻2023年新米,2023年京西稻今天正式开始收割啦,新米上市了!现场收割脱粒,包邮到家!
京西稻2023年新米,2023年京西稻今天正式开始收割啦,新米上市了!现场收割脱粒,包邮到家!